VILLACAMPA

VIVIENDA UNIFAMILIAR

ESTADO DE OBRA

PROGRESO

%

MEMORÍA DESCRIPTIVA


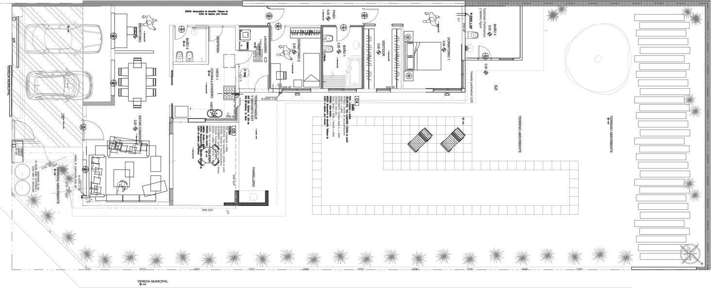
En la apacible localidad de Funes se erige una hermosa vivienda unifamiliar que cautiva con su diseño funcional y estético. Este hogar, concebido completamente en planta baja, ofrece un estilo de vida cómodo y accesible para sus residentes. Su amplio living-comedor invita a la convivencia y el confort, mientras que la cocina separada brinda espacio para la creatividad culinaria. Un pasillo estratégicamente ubicado conecta las áreas privadas con las zonas públicas y de servicio, asegurando una distribución fluida y armónica en todo el hogar. Además, la cochera delantera, inteligentemente integrada con un quincho, permite un doble uso del espacio, optimizando así la funcionalidad y el disfrute de los espacios al aire libre. Esta residencia encarna la perfecta combinación entre practicidad y elegancia, convirtiéndose en un refugio ideal para aquellos que buscan calidad de vida en un entorno tranquilo y acogedor.

PLANTAS Y VISTAS

Mobirise

UBICACIÓN DEL PROYECTO

GALERÍA DE FOTOS

CONTACTO

ARQ. LUIS BORGHI

mat. CAPSF 02690

+54 9 341 469-3135

ARQ. SEBA BORGHI

mat. CAPSF 10435

+54 9 341 354-0402



E-MAIL

info@borghiconstructora.com



Drag and Drop Website Builder