PUJOL

VIVIENDA UNIFAMILIAR

ESTADO DE OBRA

PROGRESO

%

MEMORÍA DESCRIPTIVA

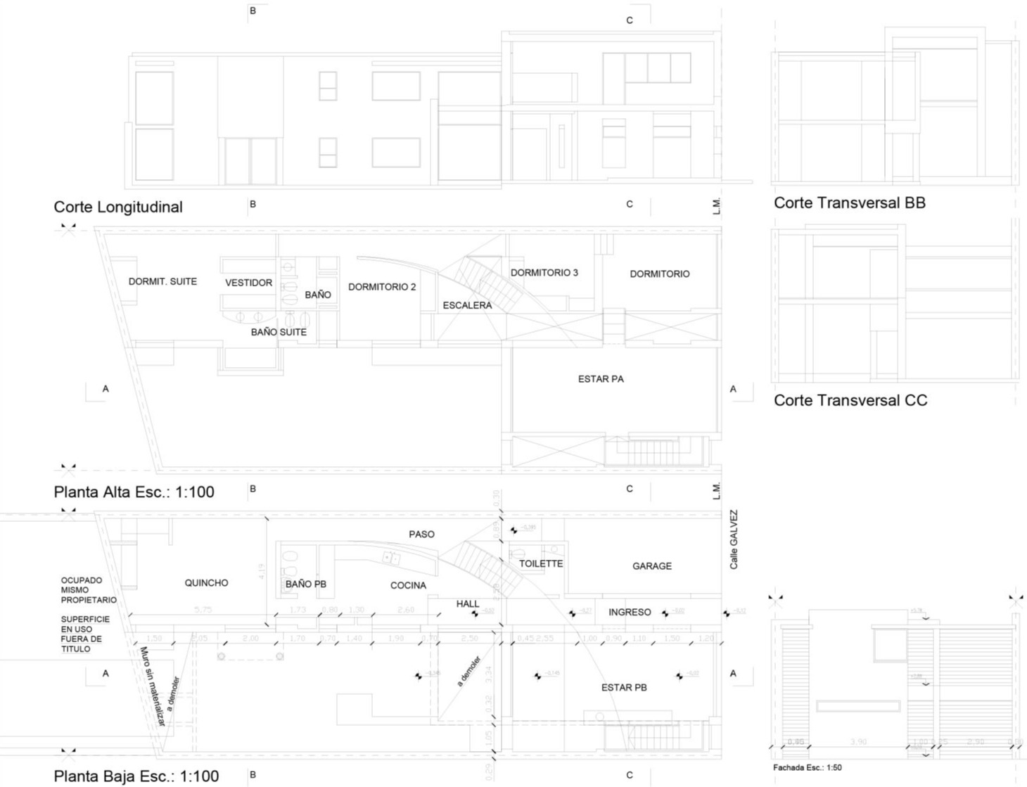
El comitente, una persona joven y aun sin hijos, adquiere la antigua propiedad con la idea de lograr una vivienda sumamente flexible que pueda evolucionar con su cuadro familiar. Espacios para reuniones con amigos, otros mas formales para algo de home working, es decir una casa que no aburra, facil de mantener, practicar.

La tentacion de crear una novedad se canalizo mas bien hacia algunos recursos creativos, pero siempre transparentando la funcion, de manera de equilibrar materiales de construccion y material de proyecto.

La transparencia, las paredes que no llegan al techo, son recursos para vincular el entrepiso creado a partir de los niveles de bovedilla, que nos obligan a ubicar el nivel de piso terminado en un escalon inferior al suelo.

Piso allanado como superficie de transito y solucion al escaso margen para los espesores de losa, superficies que trabajan con la luz, material indispensable en todos los proyectos del estudio. Dobles alturas en las circulaciones verticales e ingresos, enfatizando el vinculo de los dos niveles.

Desde la casa se observa la pecera que serpentea en el exterior, un aparente capriccio que, sin embargo presta un servicio invalorable ya que espeja el volumen de la casa y fusiona el interior con el exterior, disolviendo limites, uniendo partes de un solo proyecto.

PLANTAS Y VISTAS

Mobirise

UBICACIÓN DEL PROYECTO

GALERÍA DE FOTOS

CONTACTO

ARQ. LUIS BORGHI

mat. CAPSF 02690

+54 9 341 469-3135

ARQ. SEBA BORGHI

mat. CAPSF 10435

+54 9 341 354-0402



E-MAIL

info@borghiconstructora.com



AI Website Generator