MOLINOS HOWARD JOHNSON

CONCURSO HOTEL

ESTADO DE OBRA

PROGRESO

%

MEMORÍA DESCRIPTIVA

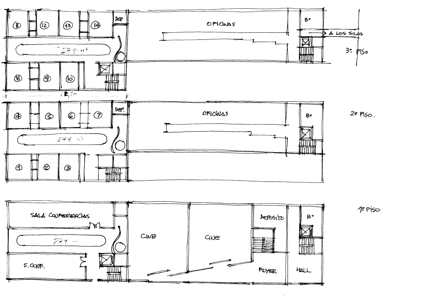
La prestigiosa cadena hotelera Howard Johnson, confirmó la construcción de un nuevo hotel en la Ciudad cordobesa de Marcos Juárez. Mediante la firma de un contrato de sublicencia con Howard Johnson Cereales Marcos Juárez y luego de distintos estudios de mercados que confirmaron la factibilidad de la localización, se resolvió adaptar el predio donde antes funcionaba el ex molino harinero Minetti, para emplazar un hotel que responderá a la categoría 4 estrellas bajo el nombre de Howard Johnson Hotel Marcos Juárez. El concurso se baso en la Refuncionalizacion Molinos Minetti en Hoteleria , Oficinas , Apartamentos , Paseo Comercial y Parking. El establecimiento contará con 58 habitaciones, sala de convenciones, spa, gimnasio, piscina, restaurante, bar y business center con todas las facilidades. Para completar el proyecto, se reacondicionará la estructura edilicia existente, para además del hotel, desarrollar una torre de departamentos destinados a la venta y un centro comercial que contendrá: locales, patio de comidas, dos micro cines y sala de entretenimientos, entre otras cosas.

PLANTAS Y VISTAS

Mobirise

UBICACIÓN

GALERÍA DE FOTOS

CONTACTO

ARQ. LUIS BORGHI

mat. CAPSF 02690

+54 9 341 469-3135

ARQ. SEBA BORGHI

mat. CAPSF 10435

+54 9 341 354-0402



E-MAIL

info@borghiconstructora.com



Free AI Website Builder