DUPLEX GARAY

DESARROLLO INMOBILIARIO

ESTADO DE OBRA

PROGRESO

%

MEMORÍA DESCRIPTIVA


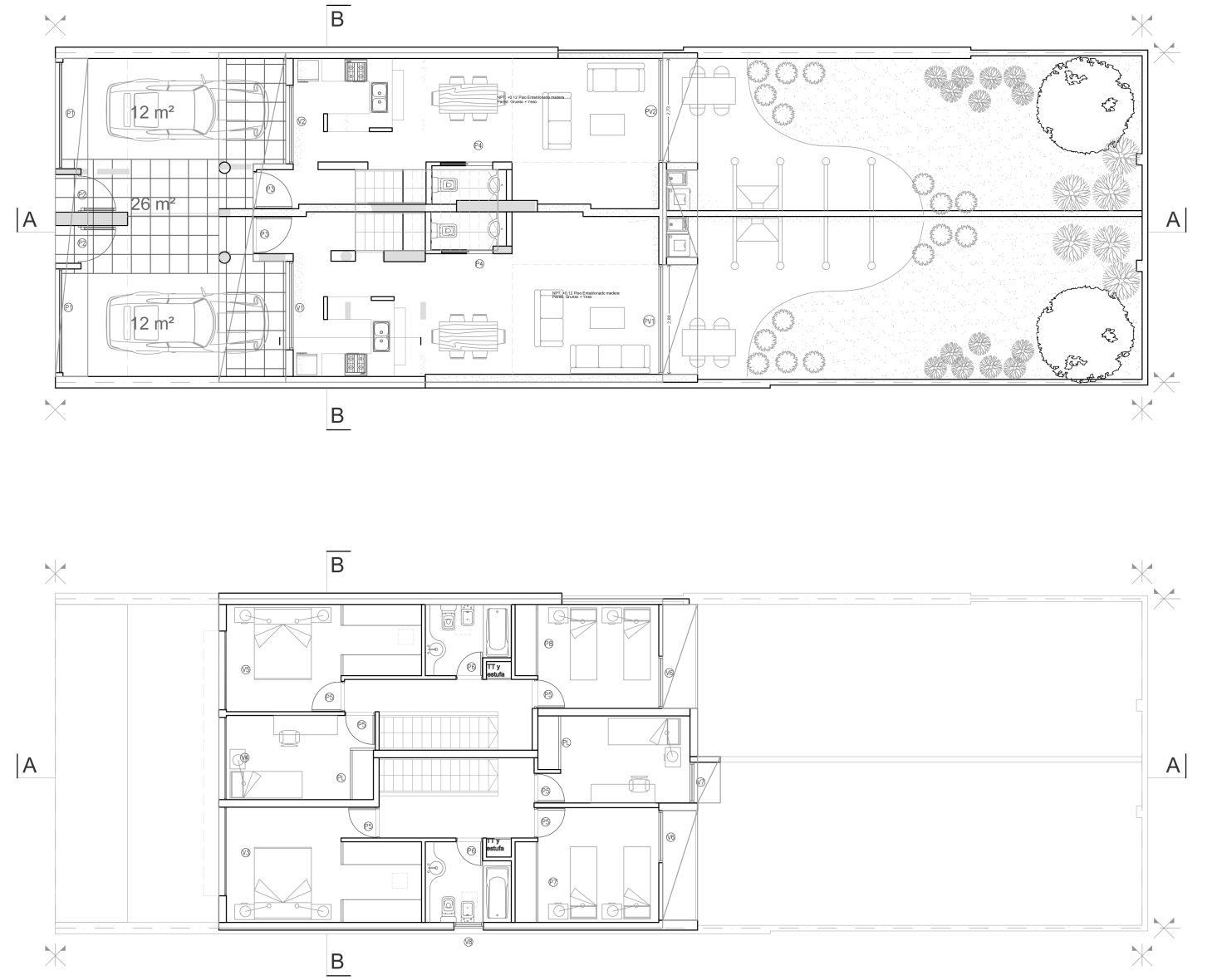
Sobre los cimientos de una casa antigua, enclavada en el centro de la manzana y rodeada de un patio trasero envidiable, se llevó a cabo una transformación notable. La demolición completa de la planta baja dio paso a la creación de dos dúplex, aprovechando al máximo el valioso espacio disponible. En la planta baja, se diseñó un amplio espacio abierto, perfecto para reuniones familiares y actividades sociales, dotando al lugar de una atmósfera acogedora y versátil.

En la planta alta, se distribuyeron tres dormitorios, uno de ellos con vestidor y baño en suite, proporcionando comodidad y privacidad a los residentes. En ambos niveles, se priorizó la ventilación cruzada, un factor clave para mantener un ambiente fresco y agradable durante los meses de verano, lo que resulta en un impacto positivo significativo en términos de confort climático y eficiencia energética. Esta renovación no solo ha revitalizado el espacio, sino que también ha honrado su legado arquitectónico al tiempo que lo adapta a las necesidades contemporáneas de sus habitantes.

PLANTAS Y VISTAS

Mobirise

UBICACIÓN DEL PROYECTO

GALERÍA DE FOTOS

CONTACTO

ARQ. LUIS BORGHI

mat. CAPSF 02690

+54 9 341 469-3135

ARQ. SEBA BORGHI

mat. CAPSF 10435

+54 9 341 354-0402



E-MAIL

info@borghiconstructora.com



Free AI Website Software