ESMORIZ

VIVIENDA UNIFAMILIAR

ESTADO DE OBRA

PROGRESO

%

MEMORÍA DESCRIPTIVA

Enclavado en la prestigiosa zona de Los Pasos, dentro de los Barrios Cerrados del Jockey en Rosario, este desarrollo cuenta con una ubicación privilegiada que garantiza accesos rápidos y convenientes a través de la Autopista Rosario-Córdoba, Calle Mendoza y Calle Urquiza, conectándose directamente con el Jockey Club y ofreciendo un fácil acceso al centro comercial de Fisherton y Funes.

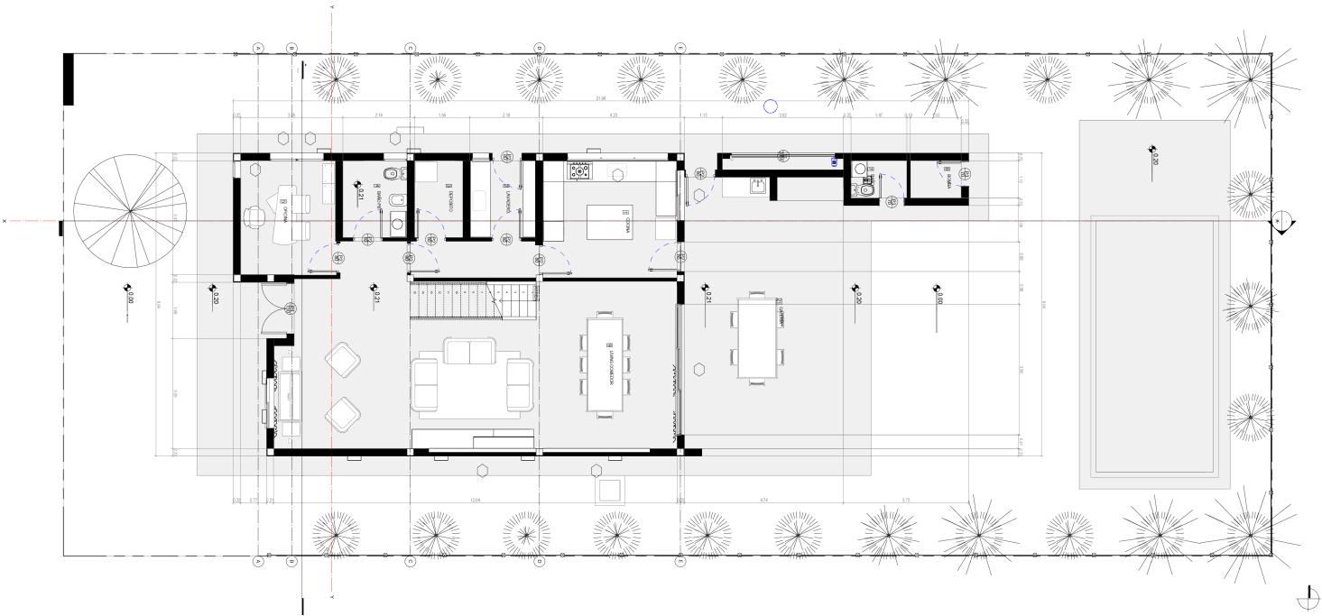
La casa, desarrollada en dos plantas, ofrece un diseño luminoso y funcional. El ingreso principal conduce a un hall recibidor inundado de luz natural, gracias a las aberturas de vidrio de piso a techo, que conecta el living comedor con la cocina. Un baño de recepción en el ingreso principal asegura la privacidad del área de descanso ubicada en la planta alta. Además, cuenta con un ingreso secundario a través del lavadero y una galería semicubierta con parrilla, baño exterior y baulera técnica. Los detalles de calidad se extienden a las aberturas de aluminio línea Moderna A30, cortinas de enrollar y revestimientos de porcelanato en la planta baja, mientras que en la planta alta se encuentra piso flotante en los dormitorios y porcelanato en los baños. La cocina presenta una elegante mesada de granito y muebles bajo mesada de melamina color blanco, al igual que en el lavadero. Para disfrutar del aire libre, la propiedad ofrece una piscina de material con solárium húmedo y seco, deck de madera y losetas térmicas en el solárium, garantizando un confort excepcional para sus residentes.

PLANTAS Y VISTAS

Mobirise

UBICACIÓN DEL PROYECTO

GALERÍA DE FOTOS

CONTACTO

ARQ. LUIS BORGHI

mat. CAPSF 02690

+54 9 341 469-3135

ARQ. SEBA BORGHI

mat. CAPSF 10435

+54 9 341 354-0402



E-MAIL

info@borghiconstructora.com



Free AI Website Creator