BLANCO

VIVIENDA UNIFAMILIAR

ESTADO DE OBRA

PROGRESO

%

MEMORÍA DESCRIPTIVA

Con una construcción solida de ladrillos vistos y techos de chapa a dos aguas. Al ingresar, un cómodo living conecta con una leve separación al comedor diario y al mismo tiempo, se unifica con la cocina. Esta última, se encuentra levemente separada y se acentúa de forma visual por su revestimiento en ladrillo visto que contrasta con el resto de los ambientes. Infaltable baño de recepción para brindar un confort adicional a las reuniones con amigos.

La planta baja se completa con un dormitorio/comodín con un generoso baño completo con salida directa a la galería, que también se accede a través del comedor diario, cuenta con parrilla, cocina a gas y espacio suficiente para almorzar los domingos en familia sin que el sol invada a los comensales. Jardín con pileta, ducha exterior y baño más depósito de guardado. Cochera para tres autos cubierta (tipo pasante) más semicírculo con cochera de cortesía.

Piso de cerámico en todos los ambientes, aberturas de aluminio blanco, climatización central por aire, termo a gas para agua caliente y splits en cada ambiente, cocina con mobiliario completo de bajo mesada, alacena, bacha de acero inoxidable doble, mesada de granito, horno empotrado y espacio para anafe a gas, extractor colocado y espacio técnico para heladera y lavavajillas, imponente escalera de madera al área privada de la casa con 3 dormitorios amplios, luminosos y con techos altos. Baños de buen diseño, amplios, loza sanitaria blanca y griferías de primeras marcas, vanitory, espejos y revestimiento en paredes, mamparas de vidrio sobre bañeras y ventilaciones naturales.

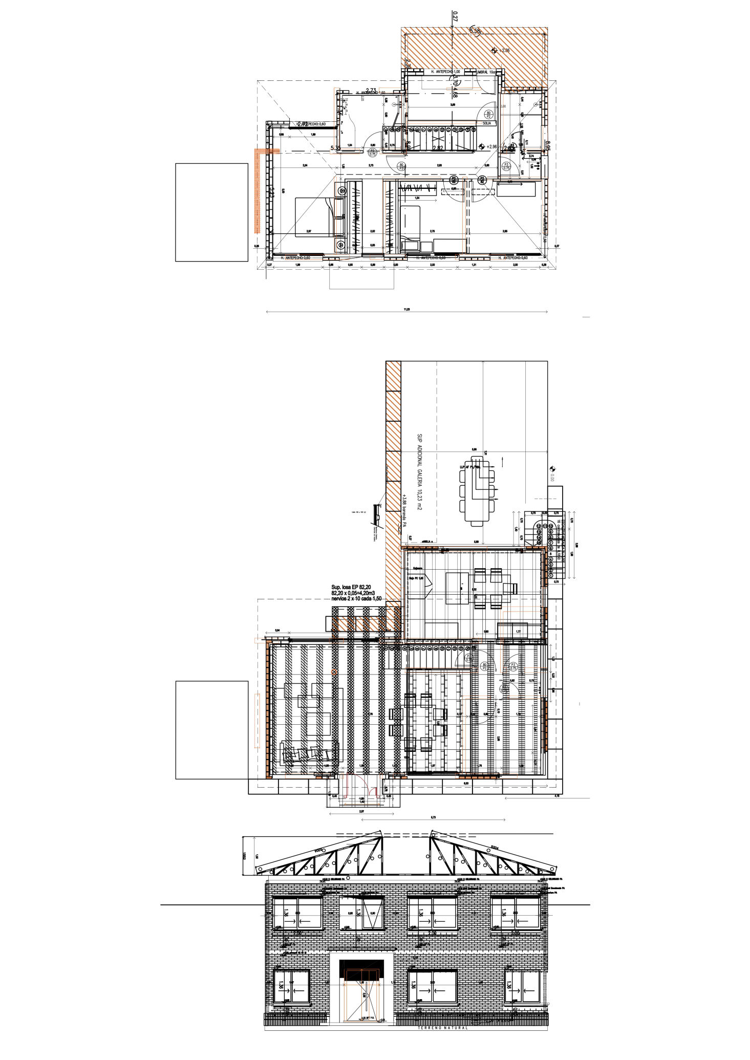
PLANTAS Y VISTAS

Mobirise

UBICACIÓN DEL PROYECTO

GALERÍA DE FOTOS

CONTACTO

ARQ. LUIS BORGHI

mat. CAPSF 02690

+54 9 341 469-3135

ARQ. SEBA BORGHI

mat. CAPSF 10435

+54 9 341 354-0402



E-MAIL

info@borghiconstructora.com



AI Website Software