ALPEMAR

OFICINAS ADMINISTRATIVAS

ESTADO DE OBRA

PROGRESO

%

MEMORÍA DESCRIPTIVA

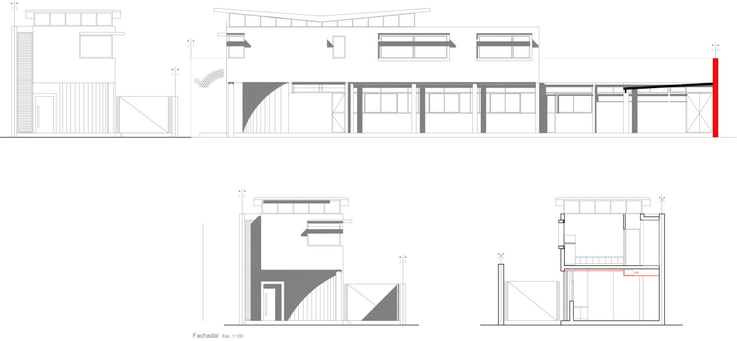
Ubicado estratégicamente en San Lorenzo, Argentina, ALPEMAR SRL emerge como un hito arquitectónico en el horizonte empresarial de la región. Con un enfoque innovador en servicios marítimos, este edificio se erige como un testimonio de progreso y modernidad. Su diseño vanguardista incorpora una cubierta de steel frame, una técnica pionera para su época, otorgando durabilidad y eficiencia estructural. En su distribución interna, alberga oficinas y espacios privados en la planta alta, garantizando privacidad y funcionalidad para sus ocupantes, mientras que en la planta baja, la recepción y una sala de reuniones ofrecen un ambiente acogedor y profesional. Además, la conveniencia se maximiza con dos accesos vehiculares, facilitando el flujo de entrada y salida de personas y equipos, contribuyendo así a la eficiencia operativa y la comodidad de los usuarios.

PLANTAS Y VISTAS

Mobirise

UBICACIÓN DEL PROYECTO

GALERÍA DE FOTOS

CONTACTO

ARQ. LUIS BORGHI

mat. CAPSF 02690

+54 9 341 469-3135

ARQ. SEBA BORGHI

mat. CAPSF 10435

+54 9 341 354-0402



E-MAIL

info@borghiconstructora.com



Best AI Website Creator